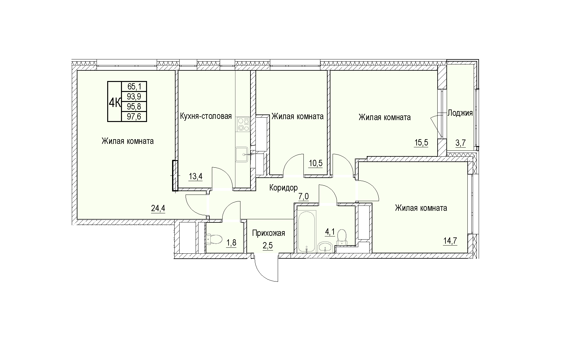
Ваша квартира К подбору по параметрам К визуальному подбору Обратный звонок Корпус 4 Корпус 8 Корпус 7 Корпус 6 Корпус 5 Корпус 2 1 2 3 4 Планировка Корпус 5 / Секция 1 / Этаж 4 / Квартира 1.4.1. Квартира№1.4.1. Комнат4 Площадь93.9 м2 Стоимость*19 160 000 Р Заказать звонок Заявка на просмотр *Точную цену и наличие квартиры уточняйте у менеджеров Не нашли что искали?Свяжитесь с нами! Согласие на обработку персональных данных Δ